洛陽千島裝飾微信客服
掃描洛陽千島裝飾公司二維碼添加好友可贈送免費驗房服務、免費出方案
來源:http://www.unvalliance.com ?? 發布時間:2016-12-25 ?? 作者:洛陽千島裝飾公司
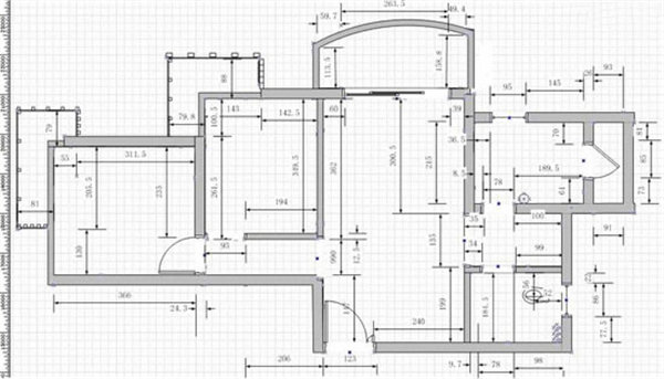
量房是房屋裝修的第一步,這個環節雖然細小,但卻是非常必須和重要的。量房其實不難。別看設計師記錄的數據繁多而又復雜,其實他們的測量是有一定規律的,按照以下思路來,就能做到有條不紊。

1、卷尺、靠尺、相機、紙、筆(好兩種顏色)。
2、所有得測量都依靠卷尺,測量范圍包括各個房間墻地面長寬高、墻體及梁的厚度、門窗高度及距墻高度等,所以一定帶好足夠上的卷尺,一般在5米以上。
3、好有打印出來的平面戶型圖,這樣更清晰,如果沒有就得手繪了;戶型圖好多帶一份,以防萬一。 二.具體測量方法
小編是個外行,但隨著設計師這一番測量,對于量房有了不少了解,就交流一下。《如何判斷設計師的專業性 從量房開始吧》

A、一般從入戶門開始,轉一圈量,后回到入戶門另一邊
B、在用卷尺量出具體一個房間的長度、高度時,長度要緊貼地面測量,高度要緊貼墻體拐角處測量
C、所有的尺寸都分段,就像咱們學過的幾何一樣分割成若干個,量了之后數據隨時記錄(舉例,一面墻中間有窗戶,先量墻角到窗戶的距離,再量窗戶的寬度,再量窗戶到另一邊墻角的距離,這樣能明白吧?)
D、窗戶要把“離地高”以及“高度”標出來,飄窗還要記錄下深度
E、柱子、門洞等的處理方式跟窗戶一樣,也用數據分開,這樣平面圖出來后就知道確切位置
F、廚衛把馬桶下水、地漏、面盆下水的位置在平面圖中標記出來,馬桶中心距墻的距離,這牽扯到買馬桶的坑距問題;還有就是梁的位置
G、沒有特殊情況,層高基本是一定的,找兩個地方量一下層高平均就可以了
H、量完回去趕緊復印兩份,以備不測
I、這樣如果讓不同公司報價,不必每家都去量房,省的自己來回折騰

需要細致,減少誤差。有特殊之處用不同顏色的筆標示清楚;在全部測量完后,再全面檢查一遍,以確保測量的準確、精細;用卷尺測量長度的話,需要兩個人配合才行,否則很容易造成數據不準確。