洛陽千島裝飾微信客服
掃描洛陽千島裝飾公司二維碼添加好友可贈送免費驗房服務、免費出方案
來源:http://www.unvalliance.com ?? 發布時間:2019-01-25 ?? 作者:洛陽千島裝飾公司
現在中國老齡化也越來越嚴重了,現在就連30歲的年輕人都開始焦慮老了以后怎么養老?退休生活怎么過?老了以后住哪兒?可能還有很多沒想過啊老了以后的生活,但是呀,今天洛陽千島裝飾的小編要給大家介紹這套案例的業主,他們老早就在為養老做準備了!它精妙的設計,不僅可以當做以后休閑的養老宅使用,年輕人以它為模板,當婚房來裝修都不失時尚感與實用性。我們一起來看看吧。

面積:95㎡
風格:北歐
業主:中年夫妻
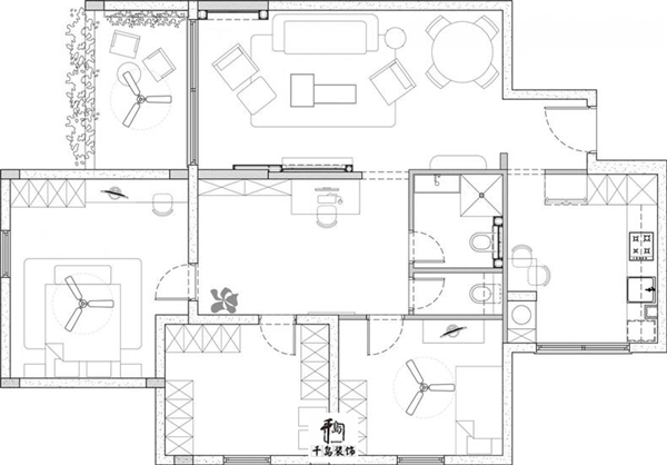
戶型:小三房(主臥、次臥、衣帽間)
業主夫婦的孩子已經大學畢業,開始步入社會并也搬離了家,以后也會逐漸建立屬于孩子自己的小家。業主夫婦決定在老家買一套房,等退休后,在家鄉安享晚年。
雖說上了年紀的人就只能選擇老氣、陳舊的裝飾風格,年輕時尚的北歐風,即將退休的業主夫婦照樣趕了一會時髦,而且家里還有一間次臥留給孩子偶爾回家里小住,裝飾北歐風格也是很符合年輕人審美喜好的。

通過看平面布局圖,我們知道,餐廳、客廳同處于一個空間,開放式的布局,飽滿也緊湊。餐廳用了“圓”這一元素進行裝飾,圓形餐桌、圓形吊燈,圓形鏡面、半圓形角幾,空間用“圓”反復裝點,形成呼應,有能讓空間別致有韻味。

整個家居空間以黑白灰為主,再搭配些許木色,樸質溫潤。這些色調搭配在一起,自然簡潔、百搭更不出錯。

黑色長沙發鎮座客廳種養,灰色單椅各立兩側,到讓沙發群完整度更高了。量好黑色沙發的尺寸,按沙發寬度,買一款一字型隔板,安裝在墻上,用來擺放裝飾畫,增加空間藝術氛圍。

黑白灰色調有些朋友會擔心是搭配得死氣沉沉,其實不然,注意黑白灰色調使用的比例,在其中選一個色調作為點綴色使用,比如業主選用的是黑色。白色面積大,灰色用于過渡黑白之間,令空間飽滿、層次感強。

北歐風情的家居,可少不了是綠植的裝點。擺放幾株綠植或花卉,美化空間的同時還能凈化家居空氣呢。

電視墻將幾何的魅力演繹得生動飽滿。墻體的結構變化、柜體的幾何飾面,極簡、立體,豐富了立面空間的層次感。

客廳之外的陽臺空間,是業主非常重視的空間,對業主來說,在陽臺休息的時間其實很多,曬太陽、看書、飼花弄草,做些能打發時間的趣事。兩只白色藤編椅子,樸質浪漫;椅子后的墻面,安裝了結實的置物架,將種植的植物以此擺放,看著它們郁郁蔥蔥,心里也敞亮起來。

書房不設門,留下通透開闊的視覺效果,與客廳之間暢通無阻的視線和動線,增強兩個空間的互動性。黑色家具,簡潔沉穩,去除那些復雜的裝飾,讓生活變得更簡單、愜意。

北歐風格的家具,線條硬朗、干凈利落。佐以綠植和裝飾畫的點綴,賦予空間更多生活氣息,靈動自然。玻璃門書柜,滿足藏書功能的同時,方便讓業主快速找到想找的書籍放在哪兒。

主臥室透露出更多極簡的韻味。用木色替代黑色,搭配灰和白,適于營造平靜溫暖的家居氛圍。斗柜和床尾凳,方便業主置物,常用的物品隨手能放在斗柜;床尾凳可以擺放次日要穿的衣服,起床后能快速換衣。

我們看過大多數北歐風案例的餐廳,大多數都采用開放式結構,業主家里的廚房采用封閉式結構。密封的空間,對于廚房美觀度來說考驗更大,因為視野變差了。

順這墻面結構,打造一字型櫥柜,合理地將下廚所需的洗、切、炒合理區域合理布置,理順下廚動線,給烹飪帶來更多便利。側面墻體也定制了貼合墻面的儲物柜,擴展收納空間,還選擇嵌入式廚電,可以恰到好處地融合到櫥柜之中。做完這些,業主就擁有寬敞舒適又實用的廚房啦。

衛浴間分成兩個部分,兩個空間并排在一起,大家可以再回頭看下平面布置圖,小面積的那一處僅用作如廁使用,客人來訪也主要使用這個空間。而面積大一點的那一處是一個完整的衛浴間,如廁去、洗漱區和淋浴區,一應俱全。淋浴區還利用玻璃隔斷,將洗澡所產生的水汽隔開,保持室內潔凈。更是搭配智能熱水器,讓家人隨時能洗個舒服熱水澡。
這套案例,它精妙的設計,不僅可以當做以后休閑的養老宅使用,年輕人以它為模板,當婚房來裝修都不失時尚、實用,還有這么高的顏值,真想自己家也是那樣呀!
相關文章推薦:???